
A case study (for the 4th semester students of WCFA) as a visit to a housing project done in the 90’s by CnT architects.
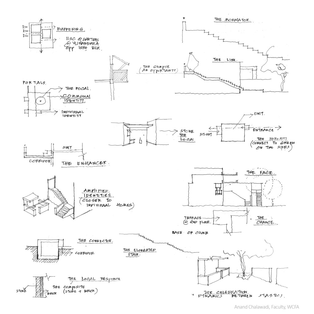
Layering, gestures, commonality, identity, links, green cover etc… and meanings like these hold the essence of the IISC Housing quarters at Vijnanpura, Bangalore. They as intended celebrate the possible slowness one could feel and appreciate and for the students bring in a relation to the Relative study program (RSP) done in their previous semester.
The medium of sketching is by pens of varying thickness. The thinner lines are predominantly filling the background whereas the thicker ones emphasizes the foreground. The sketch in parts becomes graphical to convey and amplify the tag it associates with. There are also instances wherein a single pen has offered varying thickness to bring variations with a sketch.
